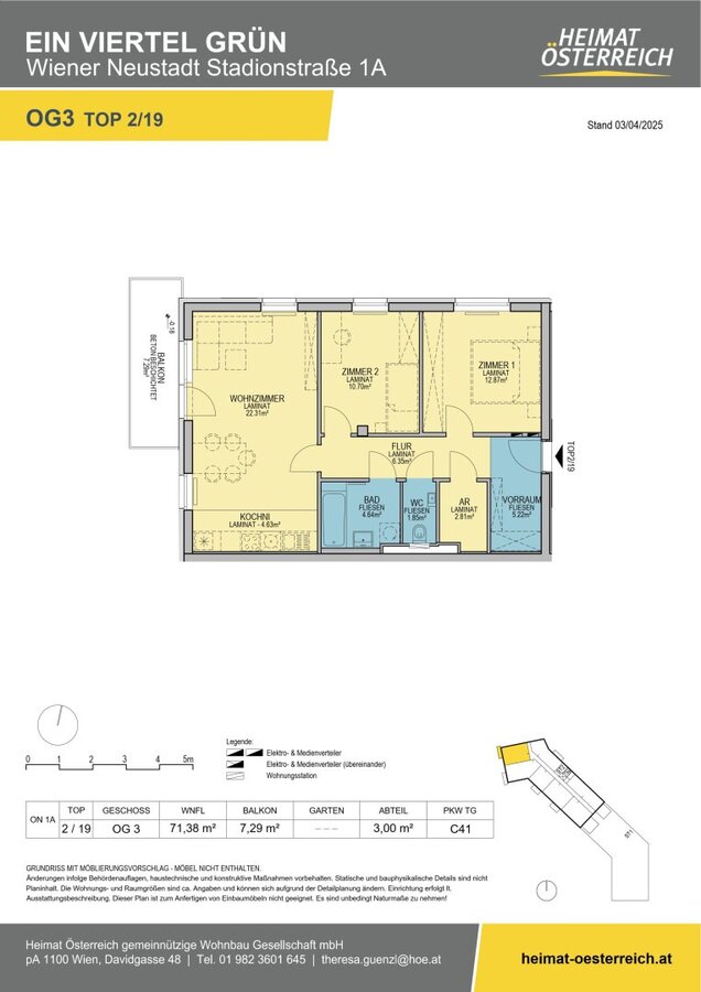
geförderter NEUBAU in „ein viertel grün“ Wiener Neustadt - 3-Zimmer-Wohntraum mit Balkon und Top-Ausstattung
2700 Wiener Neustadt, Stadionstraße
3
Zimmer
71,38 m²
Fläche
932,51 €
Miete
Dokumente
1. Dokument 1
2. Top 2_19_0
3. Umgebung_2
4. Umgebung_1
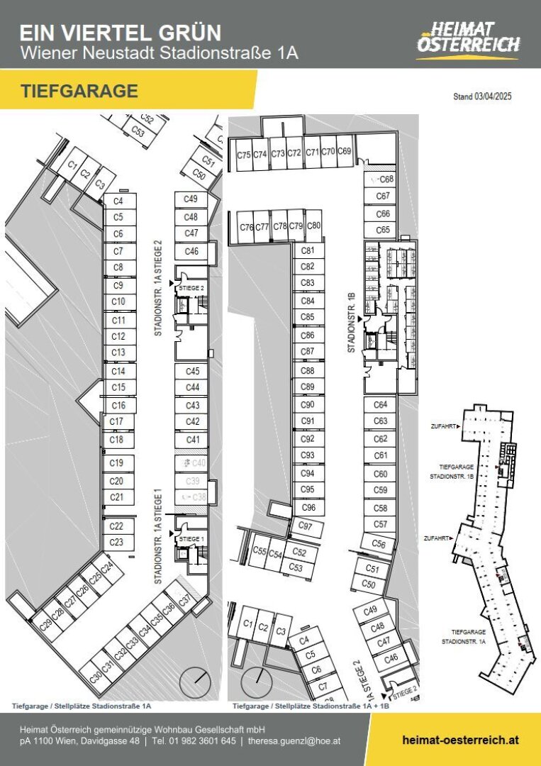
5. Tiefgarage
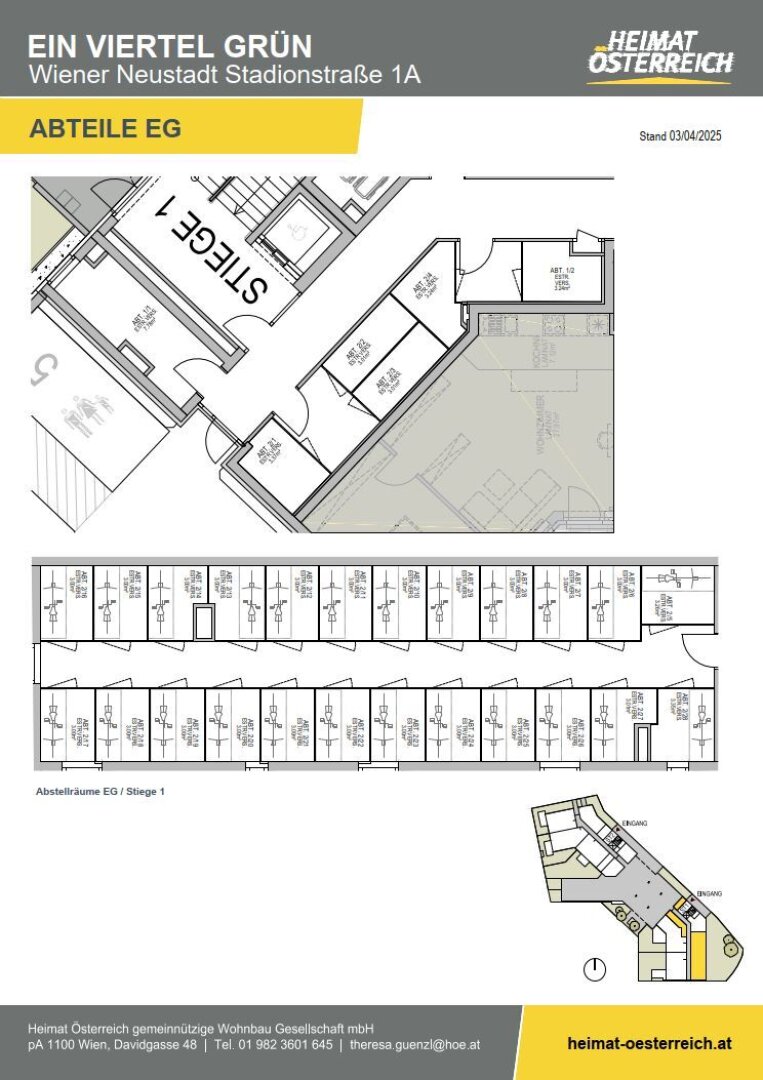
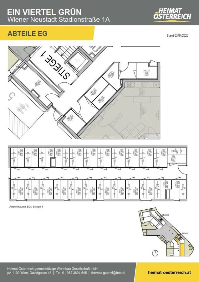
6. Abteile_EG
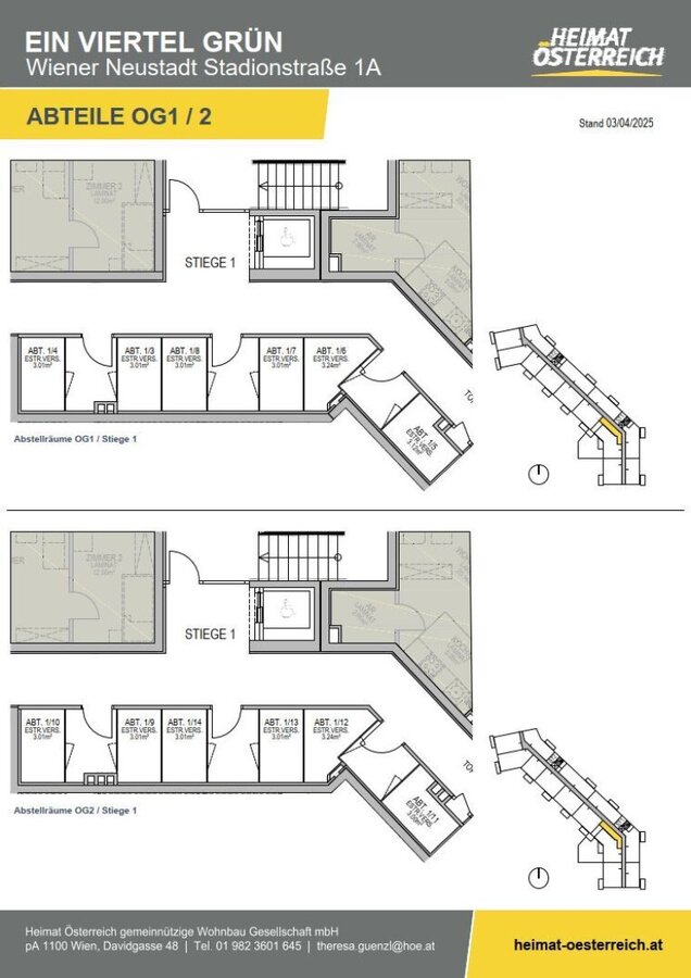
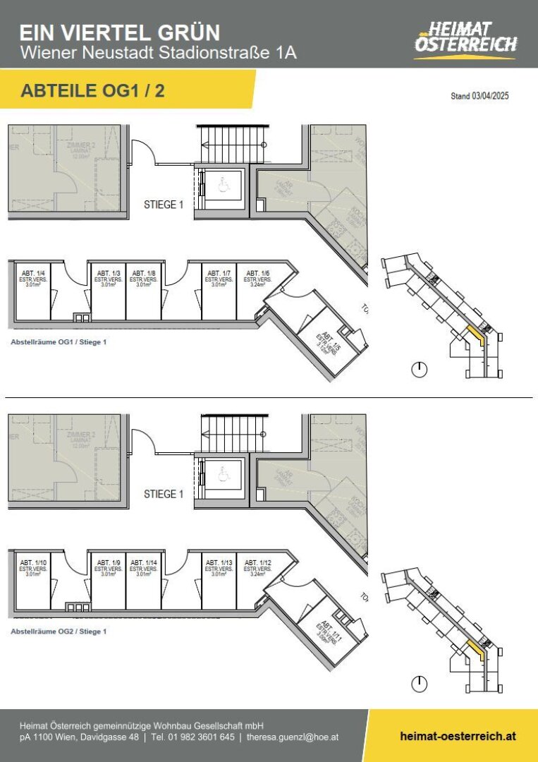
7. Abteile_OG_1
8. Nebenräume_EG