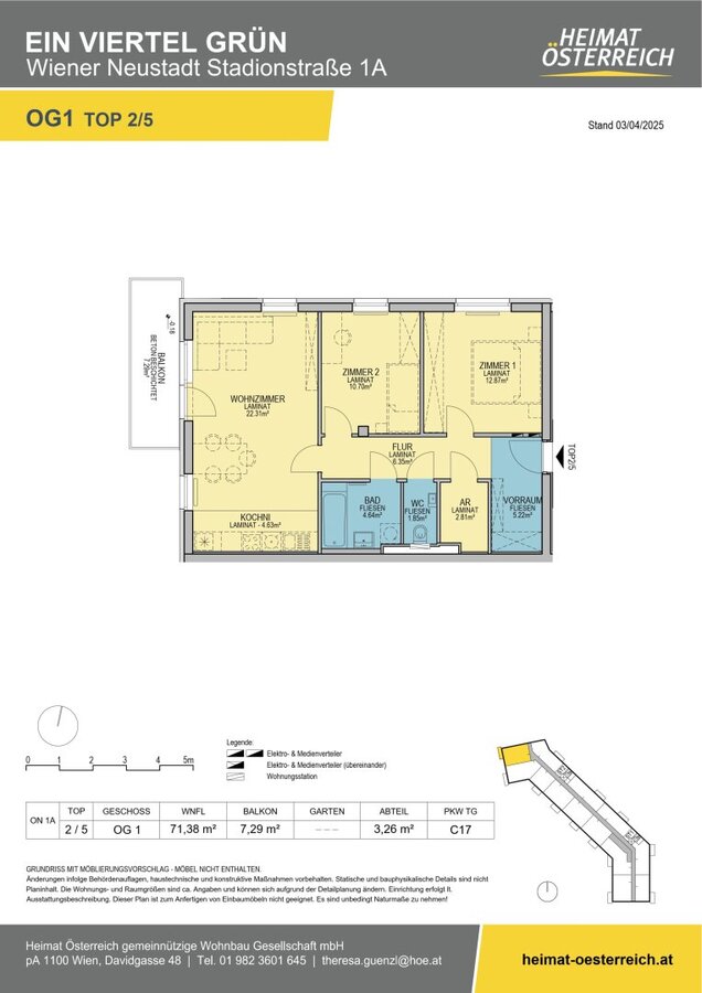
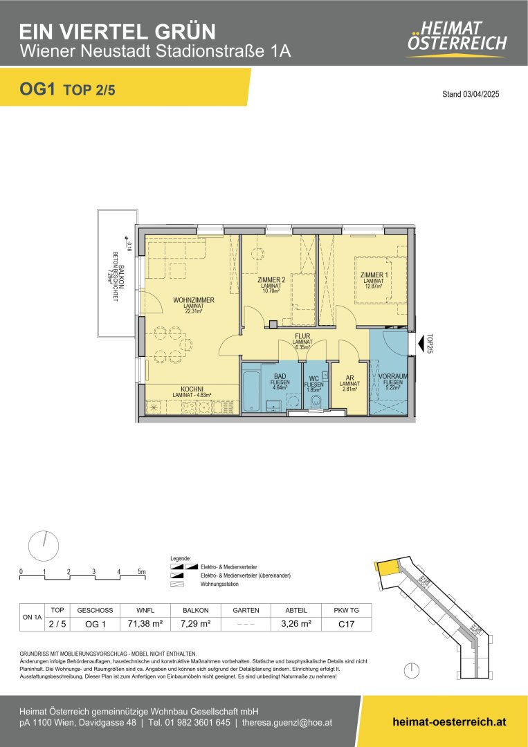
ERSTBEZUG in Wiener Neustadt „ein viertel grün“- schöne 3-Zimmer-Wohnung mit Balkon
2700 Wiener Neustadt, Stadionstraße
3
Zimmer
71,38 m²
Fläche
932,51 €
Miete
Dokumente
1. Dokument 1
2. Top 2_5_0
3. Umgebung_2
4. Umgebung_1
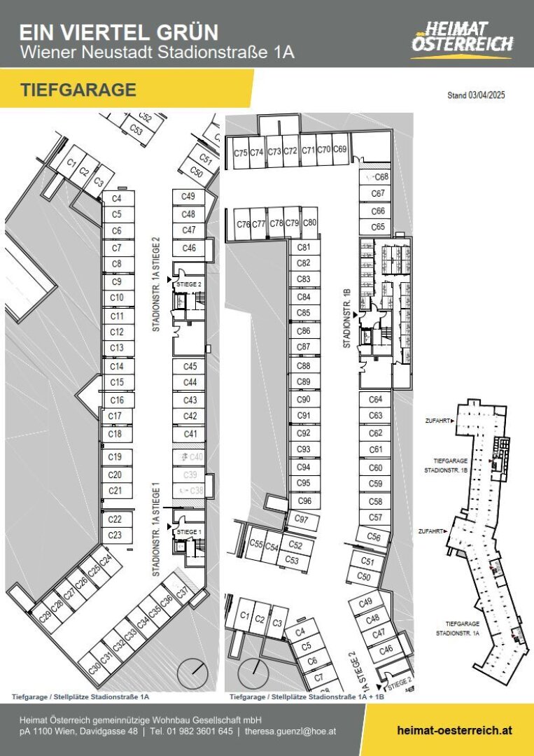
5. Tiefgarage
6. Abteile_EG
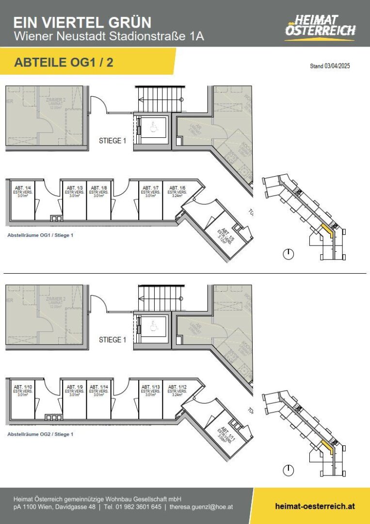
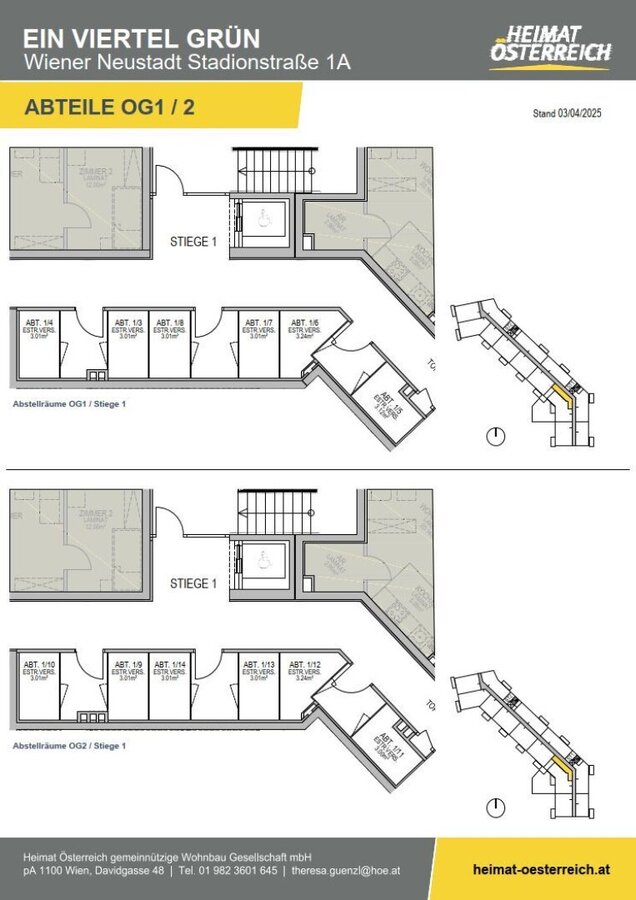
7. Abteile_OG_1
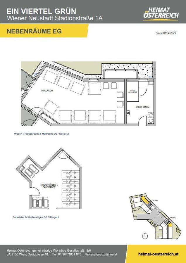
8. Nebenräume_EG