zum Hauptteil springen

Modernes Wohnen in Ottnang

4901 Ottnang am Hausruck, Kirchenstraße 1

Verfügbar WIENSUED Miete Wohneinheit
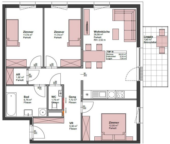
4
Zimmer
94 m²
Fläche
870 €
Miete
3.420 €
Eigenkapital
Dokumente
1. Grundriss 2. Energieausweis