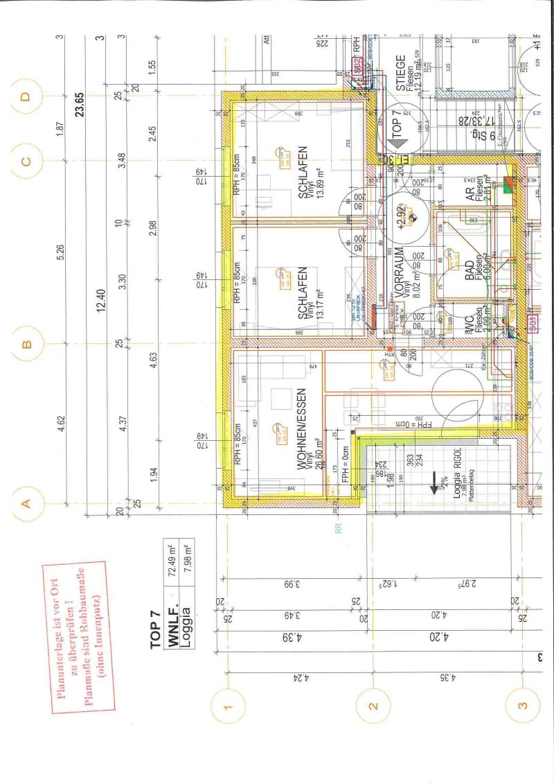
Vorige Nächste zum Inserat der gemeinnützigen Bauvereinigung STYRIA-WOHNBAU Pulgarn IV - Steyregg 8/1/7, 4221 Steyregg Verfügbar STYRIA-WOHNBAU Miete Wohneinheit ✔ 3 Zimmer 72,49 m² Fläche 881,43 € Miete 3.880 € Kaution Dokumente 1. Exposé