zum Hauptteil springen

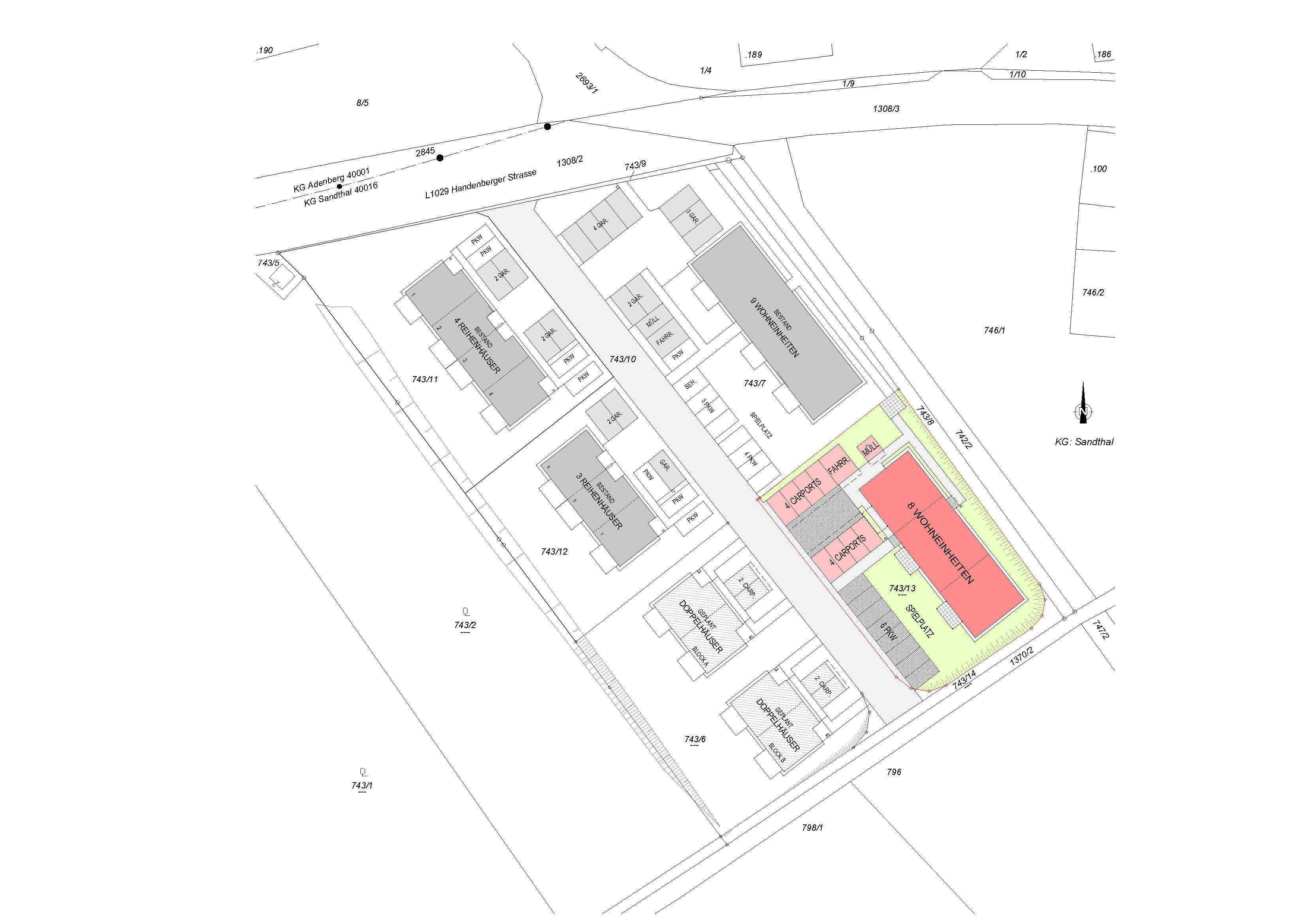
Wohnung Top 8

Kapellenstraße 3, 5144 Handenberg

Verfügbar WOHNBAUGRUPPE Miete Wohneinheit
3
Zimmer
82,85 m²
Fläche
775,61 €
Miete
Dokumente
1. Grundriss 2. Grundriss 3. Grundriss 4. Grundriss 5. Grundriss