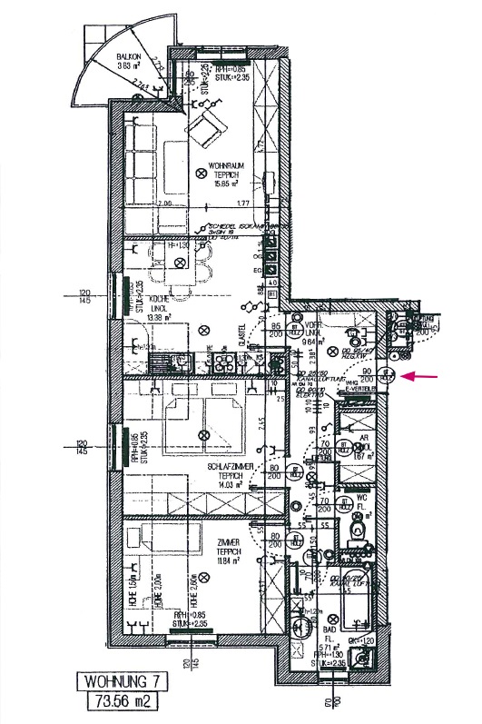
Vorige Nächste zum Inserat der gemeinnützigen Bauvereinigung WAV-WOHNEN Wohnung in Echsenbach Top 7, Steingraben 35/7, 3903 Echsenbach Verfügbar WAV-WOHNEN Miete mit Kaufoption Wohneinheit ✔ 3 Zimmer 73,56 m² Fläche 797 € Miete 3.380 € Eigenkapital