Neubau-Erstbezug im „ein viertel grün“ – hochwertig wohnen mit Balkon & Tiefgarage
2700 Wiener Neustadt, Stadionstraße
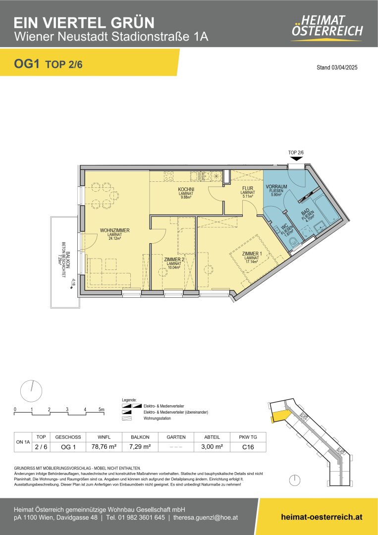
3
Zimmer
78,76 m²
Fläche
1.028,92 €
Miete
Dokumente
1. Dokument 1
2. Top 2_6_0
3. Umgebung_2
4. Umgebung_1
5. Tiefgarage
6. Abteile_EG
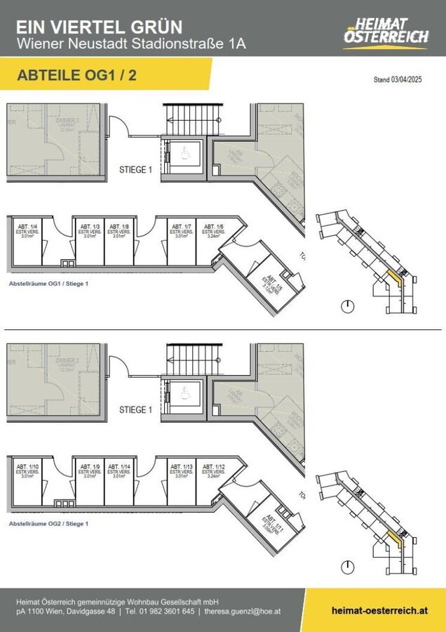
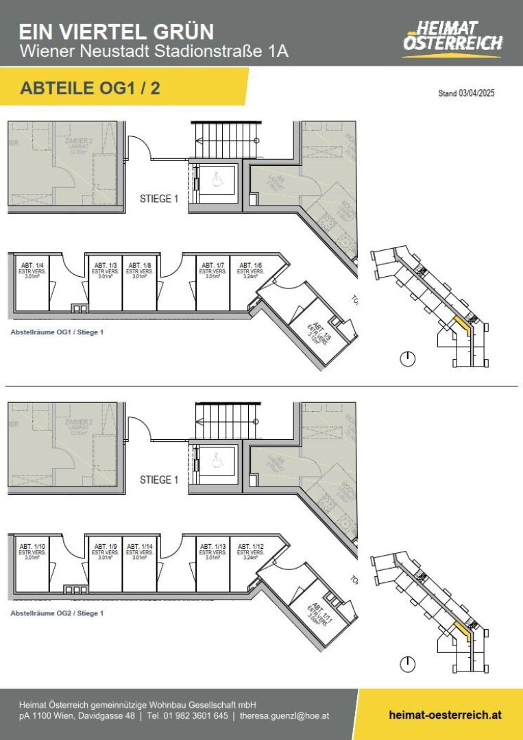
7. Abteile_OG_1
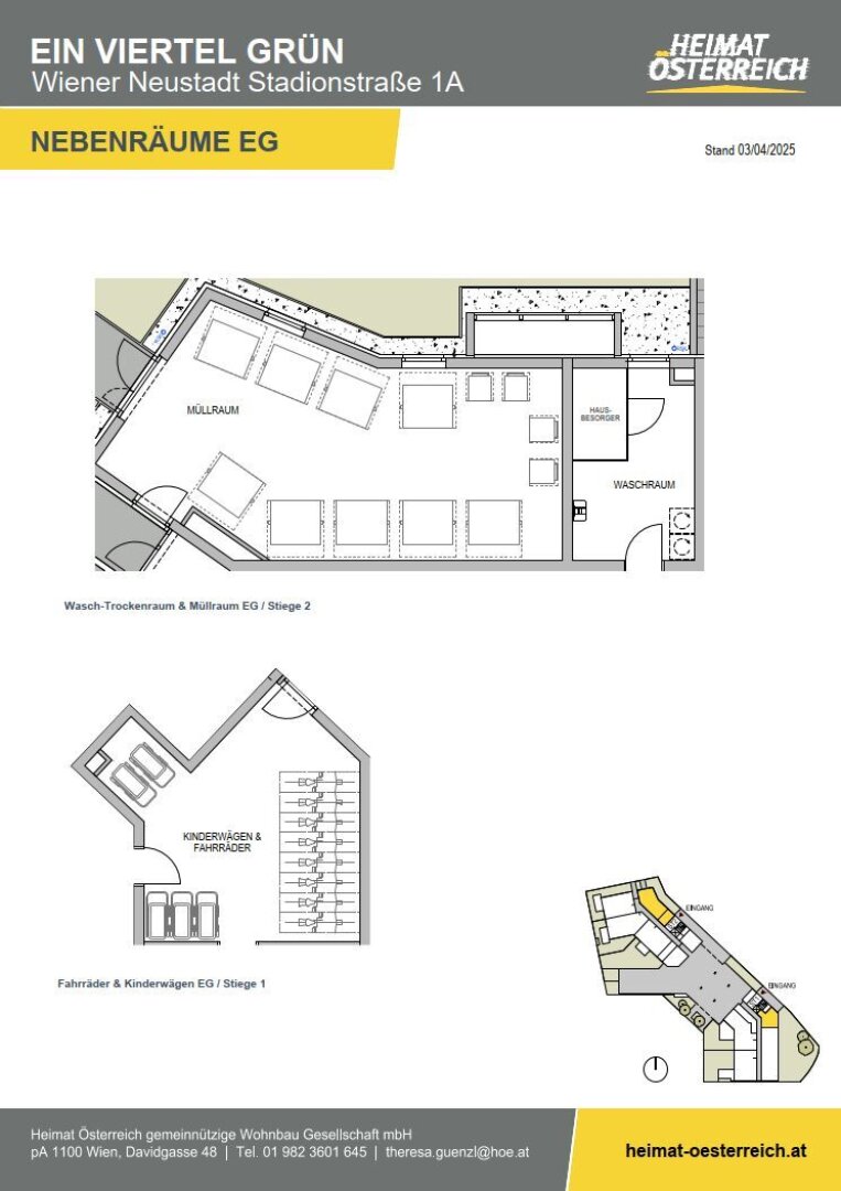
8. Nebenräume_EG