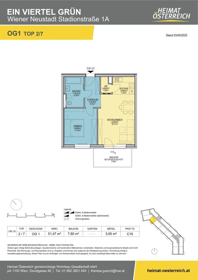
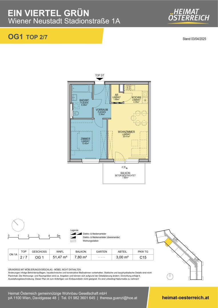
ERSTBEZUG „ein viertel grün“ in Wiener Neustadt - zentral gelegene 2 Zimmerwohnung mit Balkon
2700 Wiener Neustadt, Stadionstraße
2
Zimmer
51,47 m²
Fläche
672,40 €
Miete
Dokumente
1. Dokument 1
2. Top 2_7_0
3. Umgebung_2
4. Umgebung_1
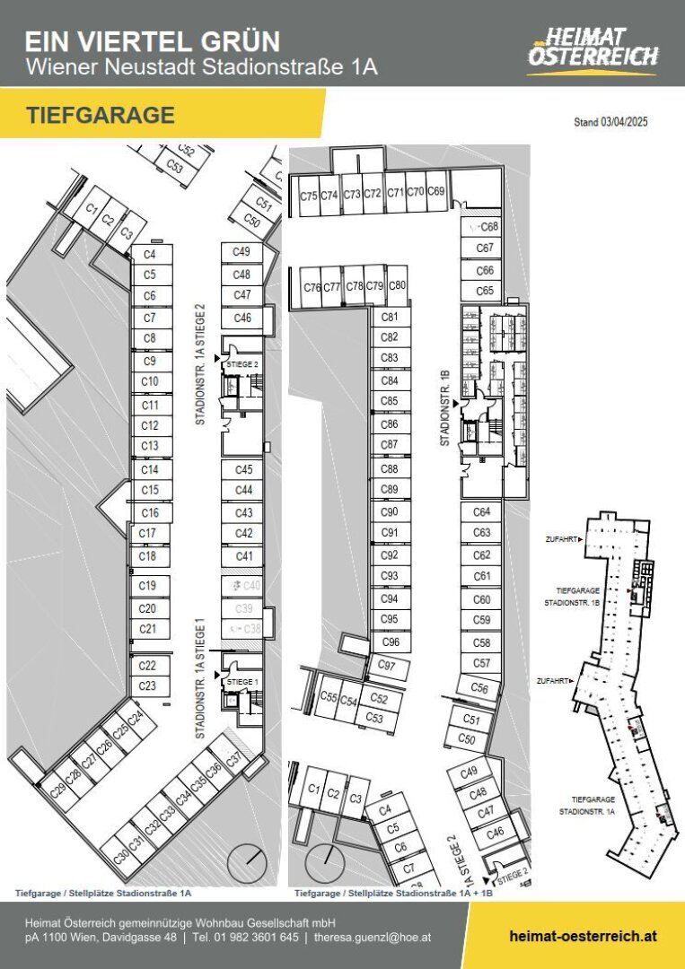
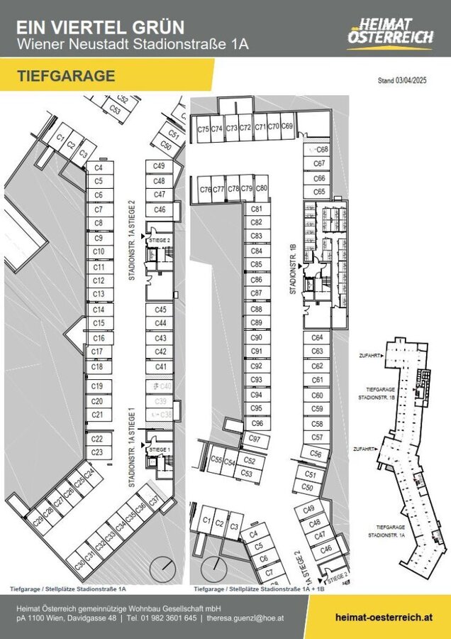
5. Tiefgarage
6. Abteile_EG
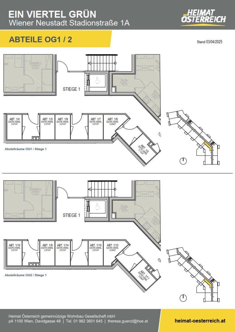
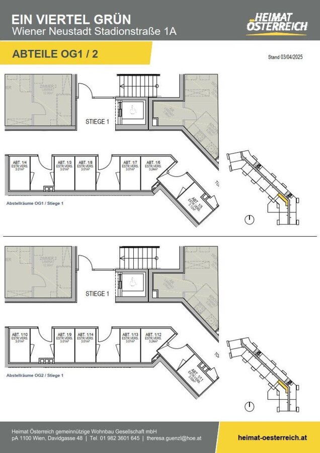
7. Abteile_OG_1
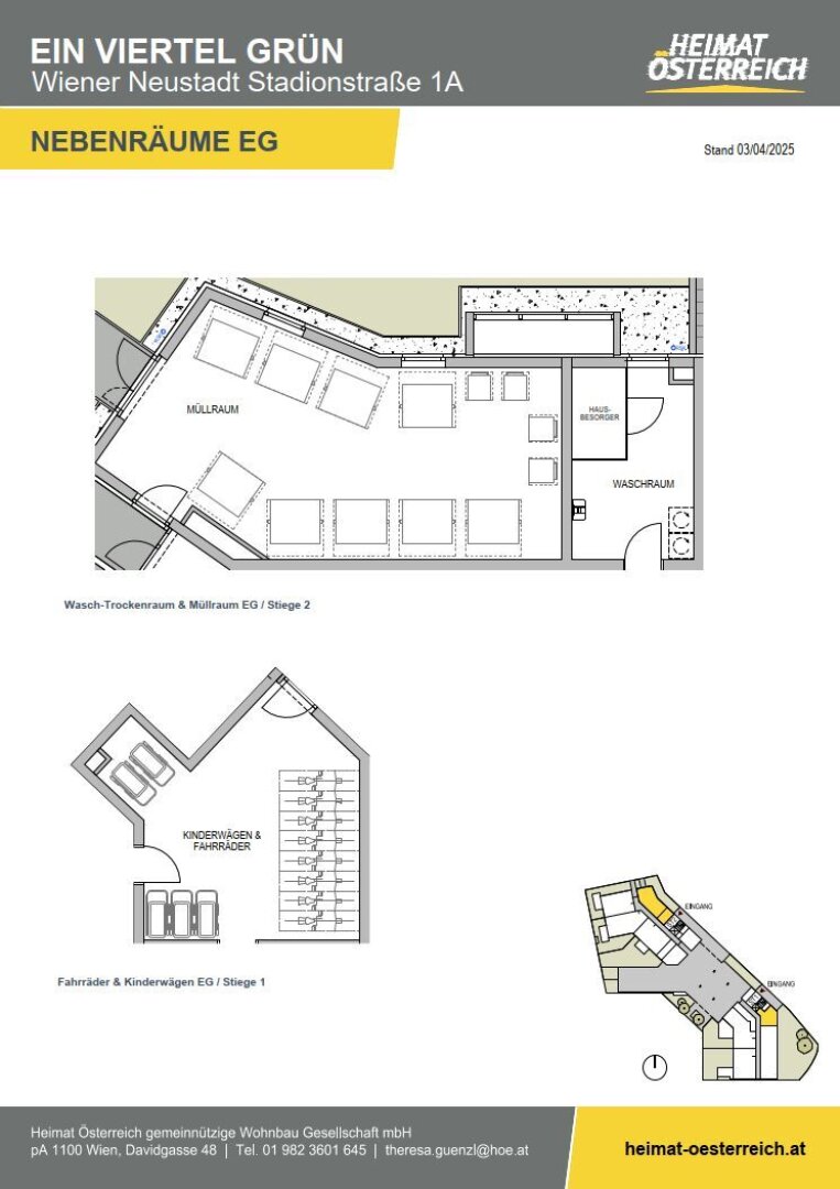
8. Nebenräume_EG