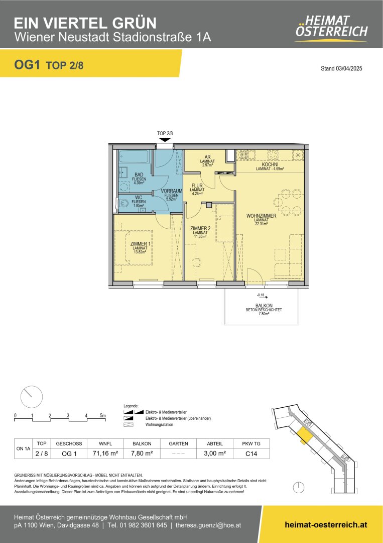
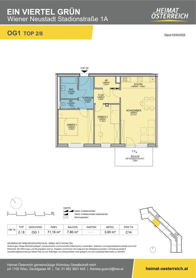
ERSTBEZUG „ein viertel grün“ in Wiener Neustadt - moderne 3-Zimmer-Traumwohnung mit Tiefgarage
2700 Wiener Neustadt, Stadionstraße
3
Zimmer
71,16 m²
Fläche
929,63 €
Miete
Dokumente
1. Top 2_8_0
2. Umgebung_2
3. Umgebung_1
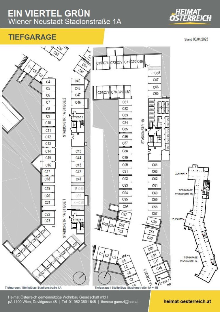
4. Tiefgarage
5. Abteile_EG
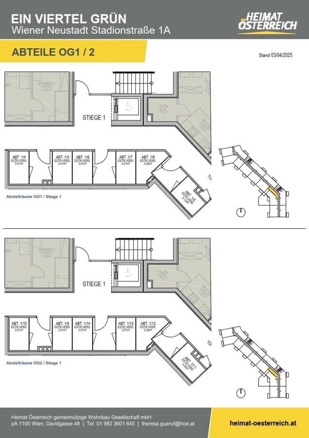
6. Abteile_OG_1
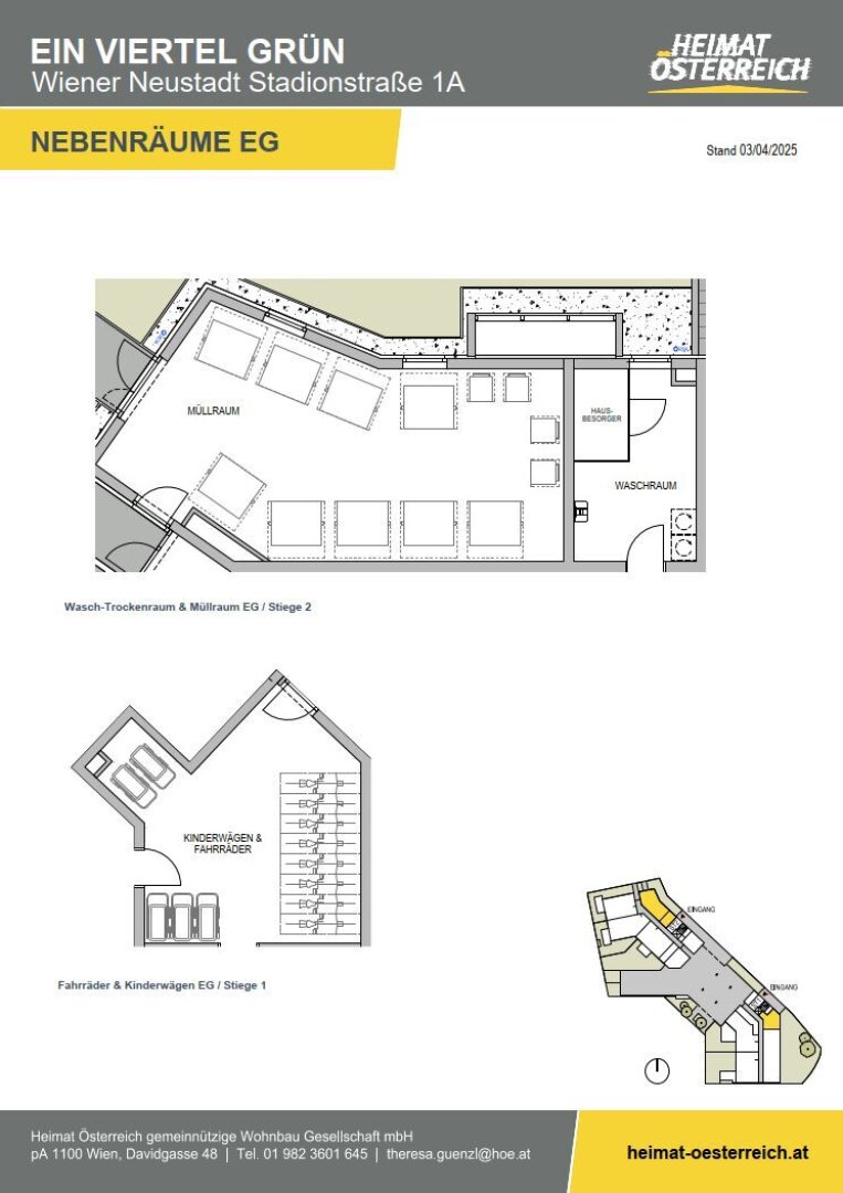
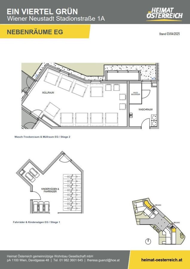
7. Nebenräume_EG