Neubau-Erstbezug im „ein viertel grün“ – hochwertig wohnen mit Balkon & Tiefgarage in Wr. Neustadt
2700 Wiener Neustadt, Stadionstraße
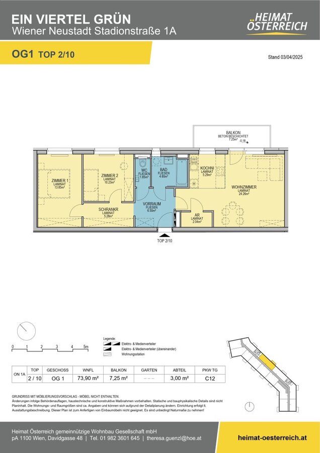
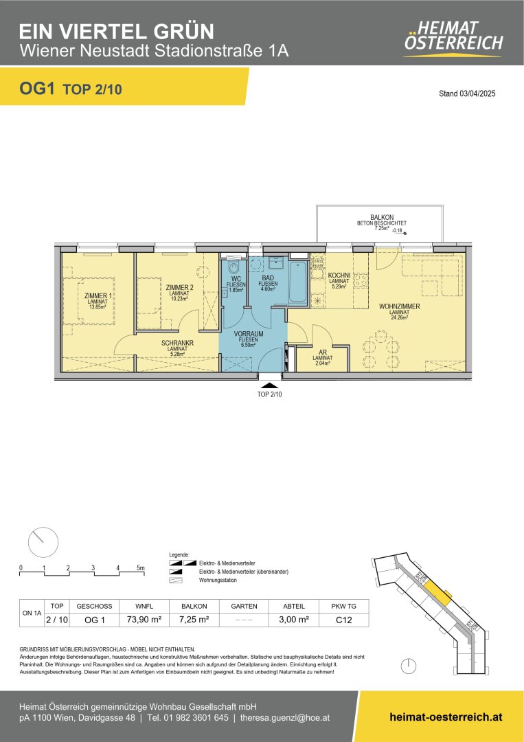
3
Zimmer
73,90 m²
Fläche
965,43 €
Miete
Dokumente
1. Dokument 1
2. Top 2_10_0
3. Umgebung_2
4. Umgebung_1
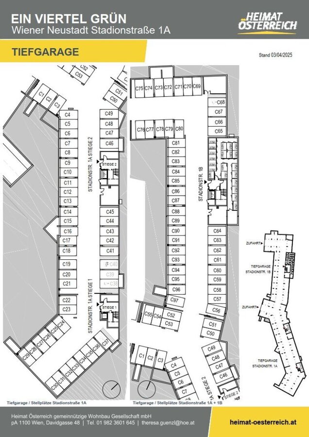
5. Tiefgarage
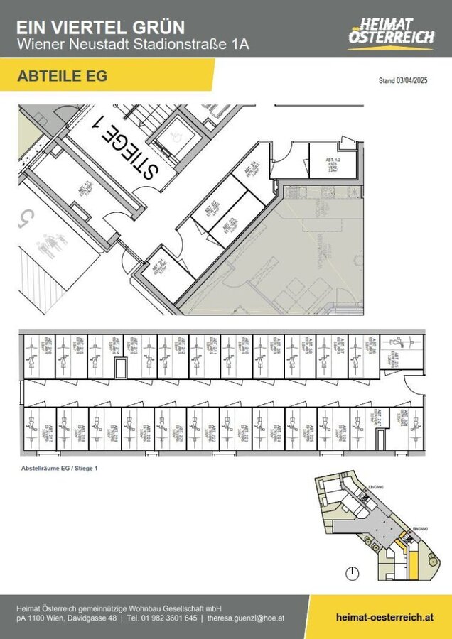
6. Abteile_EG
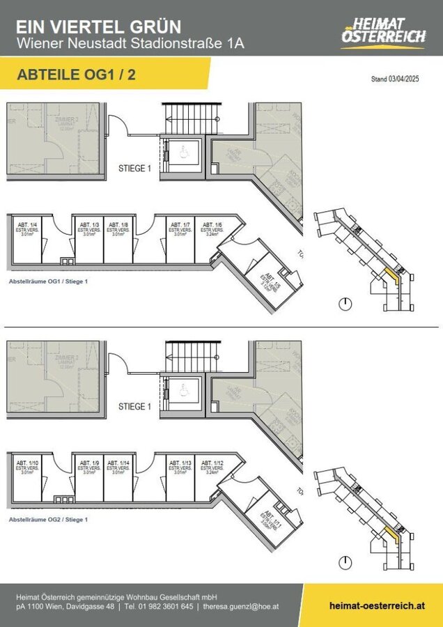
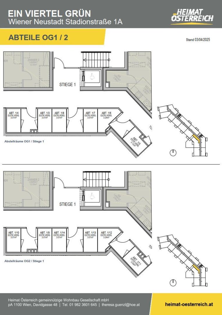
7. Abteile_OG_1
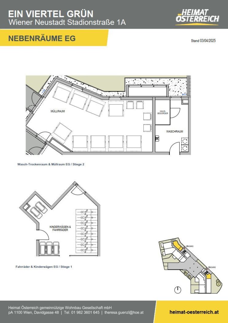
8. Nebenräume_EG