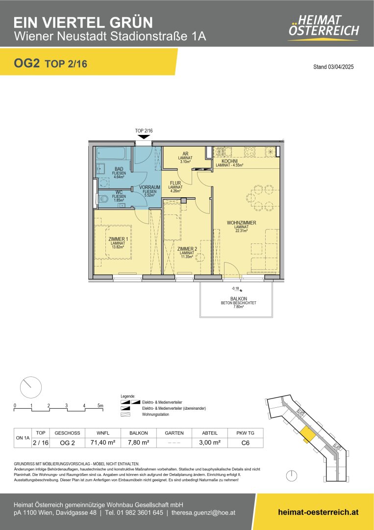
ERSTBEZUG „ein viertel grün“ in Wiener Neustadt - geförderte 3-Zimmer-Wohntraum mit Balkon und Top-Ausstattung
2700 Wiener Neustadt, Stadionstraße
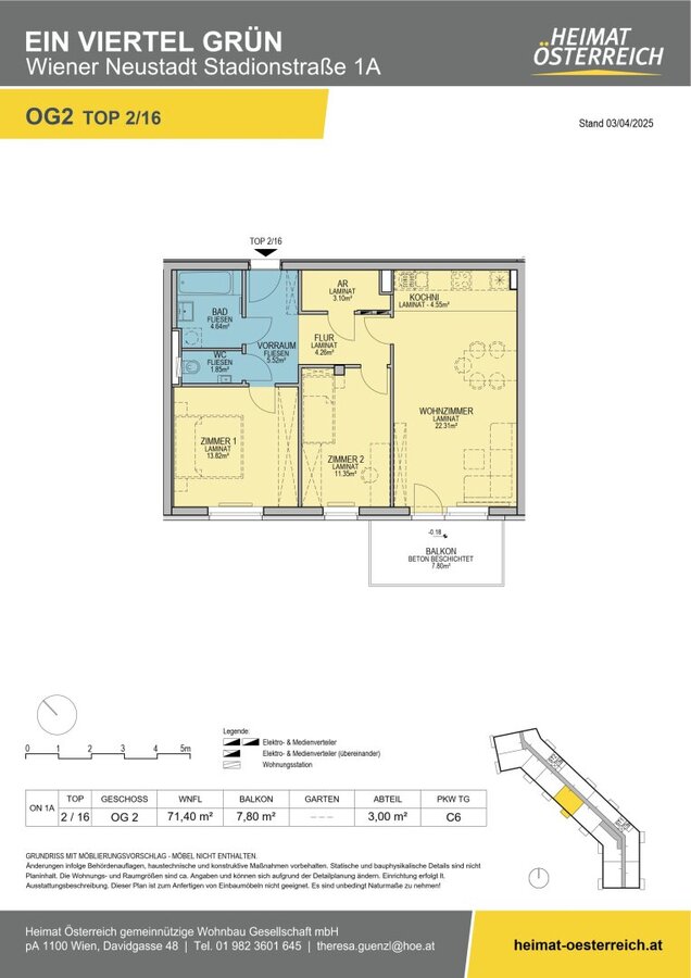
3
Zimmer
71,40 m²
Fläche
932,77 €
Miete
Dokumente
1. Dokument 1
2. Top 2_16_0
3. Umgebung_2
4. Umgebung_1
5. Tiefgarage
6. Abteile_EG
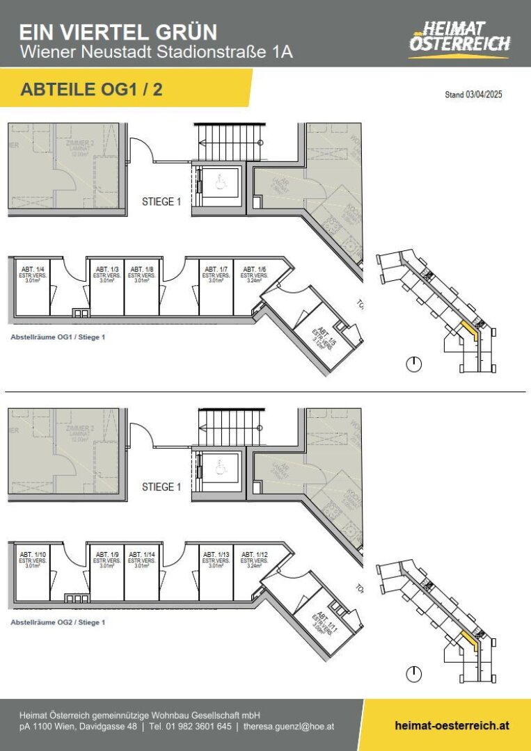
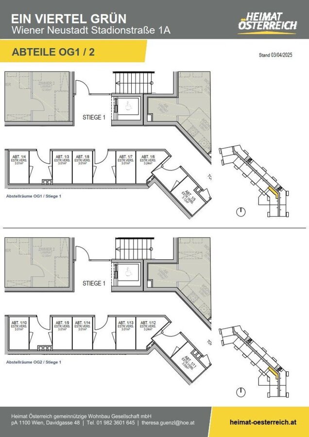
7. Abteile_OG_1
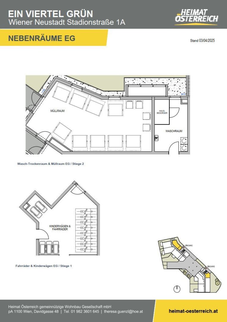
8. Nebenräume_EG