zum Hauptteil springen

Modernes Wohnhausprojekt plus Nahversorger

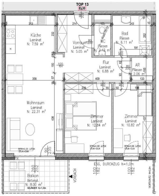
2603 Felixdorf, Hauptstraße 26

In Bau WIENSUED Miete Wohnprojekt
2 - 4
Zimmer
55 - 86 m²
Fläche
890 €
Miete
15.156 €
Eigenkapital
Dokumente
1. Projektfolder 2. Grundriss 3. Energieausweis