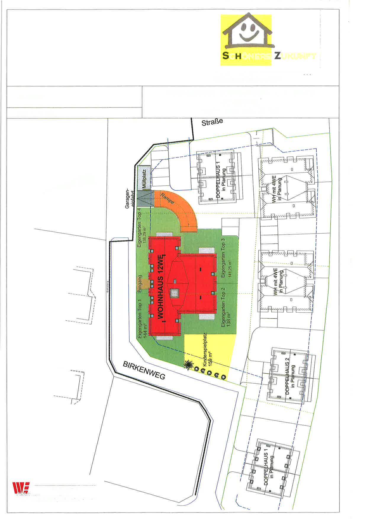
Vorige Nächste zum Inserat der gemeinnützigen Bauvereinigung SZ Geförderte Mietwohnungen mit Kaufoption in Oberndorf/Melk – 3 bis 4 Zimmer-Wohnungen mit Garagenstellplatz Birkenweg 22/Stg. 1, 3281 Oberndorf an der Melk Verfügbar SZ Miete Eigentum Wohnprojekt ✔ Dokumente 1. Exposé 2. 202001018 Energieausweis MFH Birkenweg 22 Stiege 1 3281 Oberndorf an der Melk Kurz unterschrieben