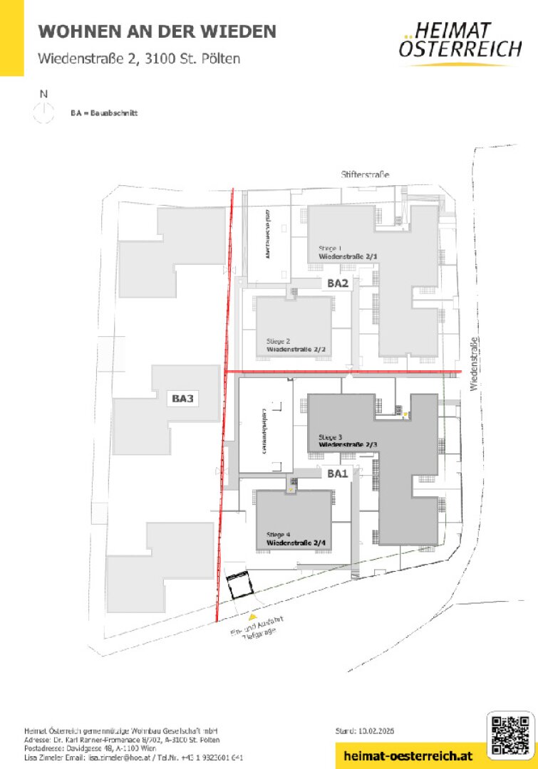
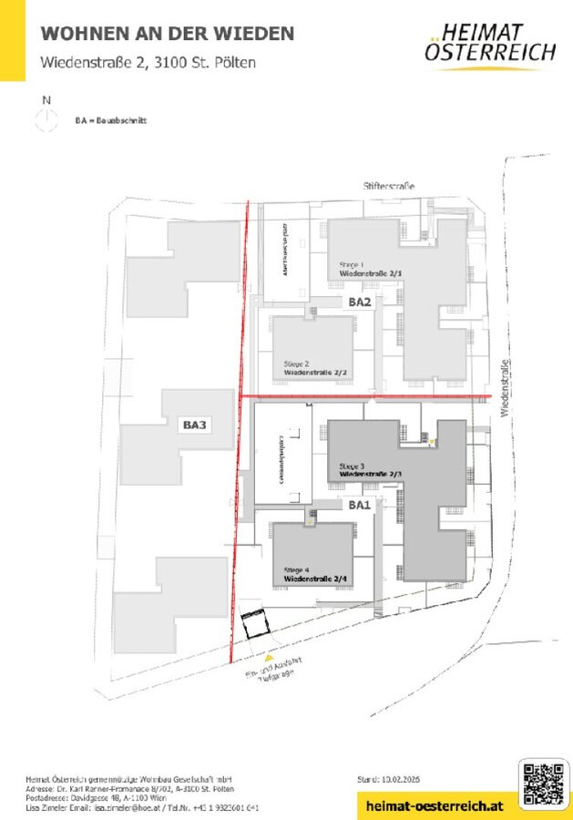
Vorige Nächste zum Inserat der gemeinnützigen Bauvereinigung HEIMAT-OESTERREICH zum Wohnprojekt Erstbezug in St. Pölten: 3- Zimmer-Wohlfühloase in attraktiver Lage 3100 St. Pölten, Wiedenstraße Verfügbar HEIMAT-OESTERREICH Miete Wohneinheit ✔ Dokumente 1. Dokument 1 2. Dokument 2 3. Stiege 3 Top 34 4. Lageplan_Wiedenstraße_01 5. Lageplan_Wiedenstraße_02