zum Hauptteil springen

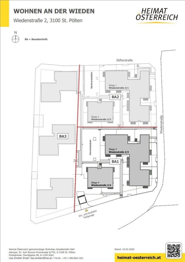
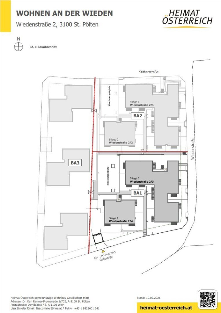
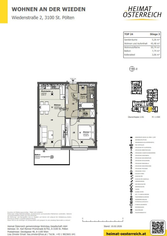
Moderne Erstbezugswohnung für Paare – Toplage nahe dem Zentrum St. Pölten

3100 St. Pölten, Wiedenstraße

Verfügbar HEIMAT-OESTERREICH Miete Wohneinheit