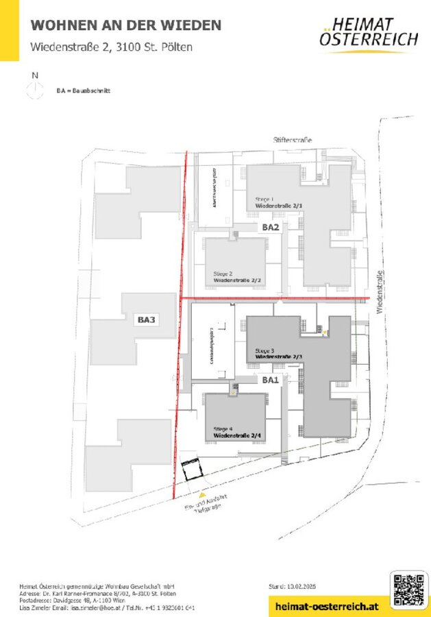
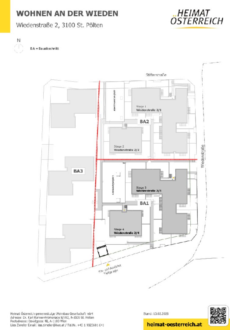
Vorige Nächste zum Inserat der gemeinnützigen Bauvereinigung HEIMAT-OESTERREICH zum Wohnprojekt Erstbezug in St. Pölten: helle 3-Zimmer-Wohnung - perfekt für Paare oder kleine Familien 3100 St. Pölten, Wiedenstraße Verfügbar HEIMAT-OESTERREICH Miete Wohneinheit ✔ Dokumente 1. Dokument 1 2. Dokument 2 3. Stiege 4 Top 5 4. Lageplan_Wiedenstraße_01 5. Lageplan_Wiedenstraße_02