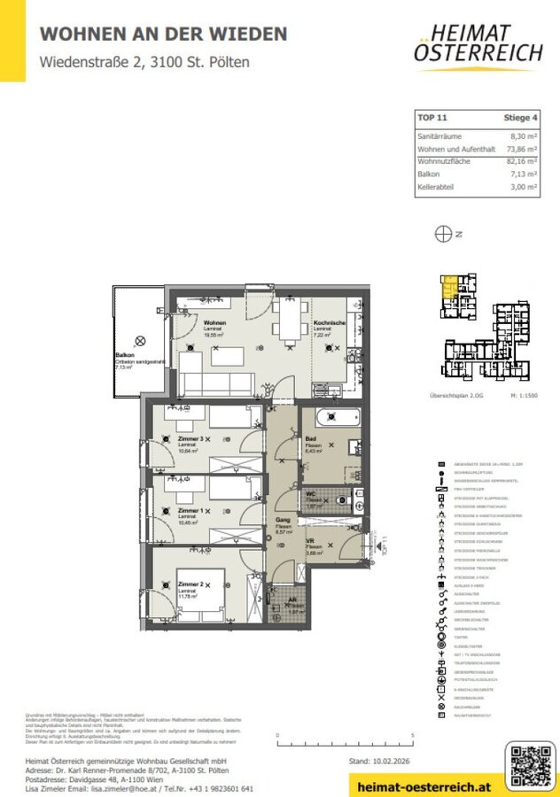
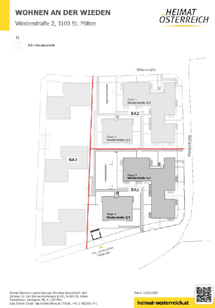
Vorige Nächste zum Inserat der gemeinnützigen Bauvereinigung HEIMAT-OESTERREICH Erstbezug: Moderne 4-Zimmer-Wohnung mit Balkon und durchdachter Raumaufteilung 3100 St. Pölten, Wiedenstraße Verfügbar HEIMAT-OESTERREICH Miete Wohneinheit ✔ Dokumente 1. Dokument 1 2. Dokument 2 3. Dokument 3 4. Lageplan_Wiedenstraße_01 5. Lageplan_Wiedenstraße_02 6. Wohnungsplan_Stiege4_Top11