zum Hauptteil springen

Ernstbrunn – schöne geförderte 2-Zimmerwohnung im Grünen

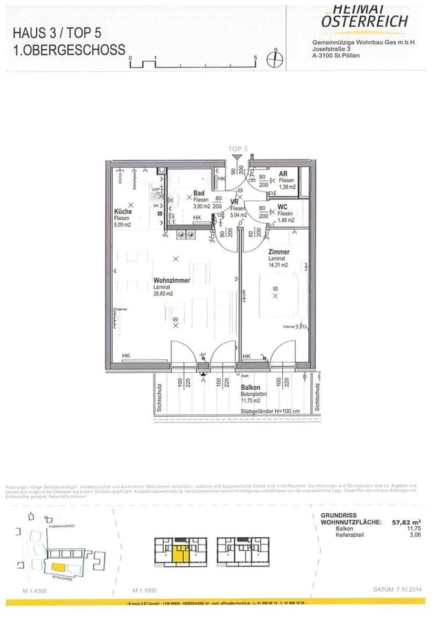
2115 Ernstbrunn, Schulgasse 2d

Verfügbar HEIMAT-OESTERREICH Miete Wohneinheit
2
Zimmer
57,82 m²
Fläche
756,69 €
Miete
Dokumente
1. Wohnungsplan 2. Energieausweis 3. SVS_20141028_30410_Plan_Top_3