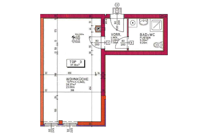
Vorige Nächste zum Inserat der gemeinnützigen Bauvereinigung WAV-WOHNEN Wohnung in Retz Top 3, Berggasse 4/3, 2070 Retz Verfügbar WAV-WOHNEN Miete Wohneinheit ✔ 1 Zimmer 37,18 m² Fläche 410 € Miete 2.180 € Eigenkapital