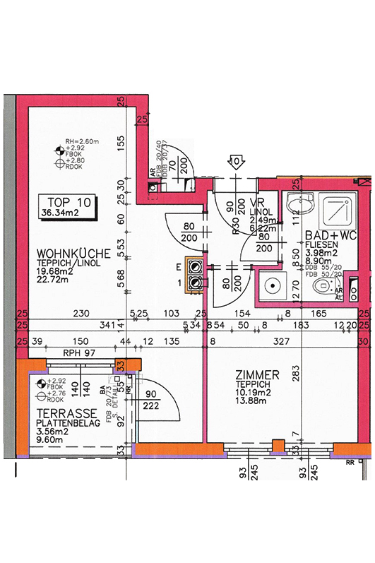
Vorige Nächste zum Inserat der gemeinnützigen Bauvereinigung WAV-WOHNEN Wohnung in Retz Top 10, Berggasse 2/10, 2070 Retz Verfügbar WAV-WOHNEN Miete Wohneinheit ✔ 2 Zimmer 36,49 m² Fläche 490 € Miete 2.180 € Eigenkapital