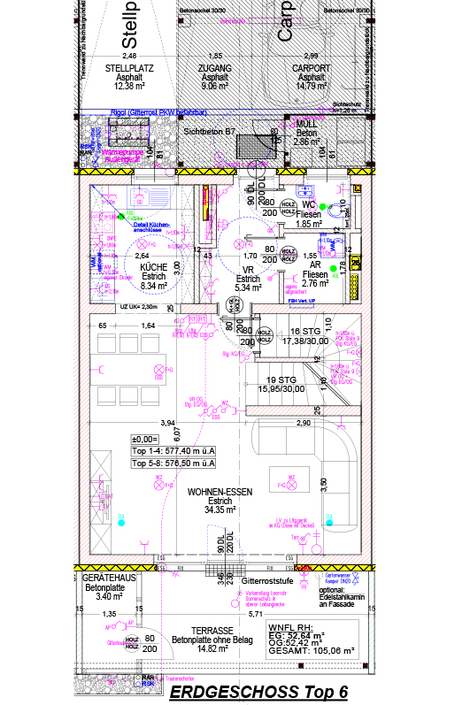
Vorige Nächste zum Inserat der gemeinnützigen Bauvereinigung WAV-WOHNEN Reihenhaus in Waldenstein Top 6, Waldenstein 156, 3961 Waldenstein Verfügbar WAV-WOHNEN Miete mit Kaufoption Wohneinheit ✔ 4 Zimmer 105,06 m² Fläche 1.021 € Miete 9.500 € Eigenkapital